Muro filtrante piscina FILTRINOV: ESPEJO
¡Finalmente un muro filtrante económico y todo en uno! El bloque se instala directamente en las paredes de su piscina. Con este muro filtrante Filtrinov, ya no es necesario hacer un local técnico ni tener conocimientos de fontanería. Viene montado.
1 boca de aspiración

Como opción, puede pedir las piezas de sellado de color para armonizar con su liner de piscina. E incluso la tapa superior con sus losas de piscina. 
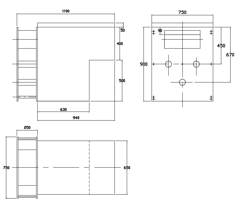
¿Cuáles son las dimensiones de su muro filtrante ESPEJO?

¿Esquema de instalación del muro filtrante FILTRINOV?



Atención, el bidón de PH líquido (no incluido) no debe instalarse dentro del muro filtrante FILTRINOV - Debe prever un pequeño local aparte (opcional)

Atención, el bidón de PH líquido (no incluido) no debe instalarse dentro del muro filtrante FILTRINOV - Debe prever un pequeño local aparte (opcional)
Atención, el bidón de PH líquido (no incluido) no debe instalarse dentro del muro filtrante FILTRINOV - Debe prever un pequeño local aparte (opcional)
Atención, el bidón de PH líquido (no incluido) no debe instalarse dentro del muro filtrante FILTRINOV - Debe prever un pequeño local aparte (opcional)
Atención, el bidón de PH líquido (no incluido) no debe instalarse dentro del muro filtrante FILTRINOV - Debe prever un pequeño local aparte (opcional)

Atención, el bidón de PH líquido (no incluido) no debe instalarse dentro del muro filtrante FILTRINOV - Debe prever un pequeño local aparte (opcional)
Atención, el bidón de PH líquido (no incluido) no debe instalarse dentro del muro filtrante FILTRINOV - Debe prever un pequeño local aparte (opcional)
El muro filtrante Filtrinov también es compatible con piscinas de concreto, bloques o bloques de poliestireno de altura H: 25 cm, solo debe hacer un encofrado de concreto de 10 cm debajo del bloque para elevar la altura.
ZOOM sobre la domótica de nuestros muros filtrantes FILTRINOV
FILTRINOV le presenta su nueva gama GS CONNECT.
Le permite gestionar todos los elementos de su filtración de manera remota desde su smartphone. Existen 2 versiones de muro filtrante conectado:
1 : Versión básica : Controle directamente su piscina desde su teléfono y deje de hacer viajes al local técnico. Controle la iluminación de su piscina desde la aplicación. Elija su color, intensidad o incluso las horas en las que debe encenderse o apagarse.
1 : Versión Premium :
Si elige el muro en su versión completa conectada con tratamiento de sal + regulador de pH: La bomba dosificadora del Phileo VP permite una
visualización rápida del buen funcionamiento del
aparato, iluminándose según el estado del pH. Controle su tratamiento de sal a distancia
con su dispositivo conectado por Wifi,
directamente desde la aplicación Vigipool.